
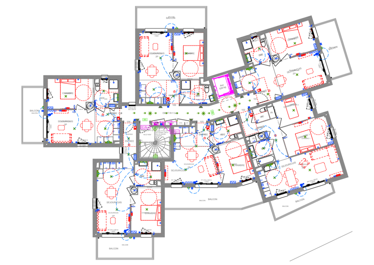
Le plan d'implantation présente graphiquement l'ensemble des appareillages électriques, tel que : les prises, l'éclairage, les liaisons, la téléphonie, la vidéophonie…
Parce que chaque projet ou chaque pièce, nécessitent le nombre adéquat d’équipement nécessaire, avec les quantités à placer suivant les besoins.